
埃美柯泄壓/持壓閥9500X概述:
泄壓閥(fa):可(ke)(ke)將給水(shui)(shui)(shui)管(guan)中(zhong)超過導間安全設定(ding)值的壓力(li)(li)釋放,并維特管(guan)中(zhong)壓力(li)(li)在一(yi)安全設定(ding)值以下,以防(fang)止管(guan)中(zhong)高壓或(huo)突壓毀損管(guan)線或(huo)設備。可(ke)(ke)用(yong)于(yu)高層大(da)樓消防(fang)測(ce)試(shi)循(xun)環系(xi)統(tong),以防(fang)止水(shui)(shui)(shui)壓過高造成系(xi)統(tong)危險。掛壓間:可(ke)(ke)維持主間上(shang)游供(gong)水(shui)(shui)(shui)壓力(li)(li)于(yu)某一(yi)設定(ding)值以上(shang),以保障主間上(shang)游供(gong)水(shui)(shui)(shui)區之壓力(li)(li)。鑒開啟(qi)閻:裝(zhuang)于(yu)消防(fang)噴淋泵出水(shui)(shui)(shui)口處,當泵出水(shui)(shui)(shui)口處壓力(li)(li)上(shang)升(sheng)至某一(yi)設定(ding)值以上(shang)時此間立(li)即開啟(qi)。
壓力等級:PN10.PN16.PN25
通徑:中(zhong)50mm~中(zhong)500mm
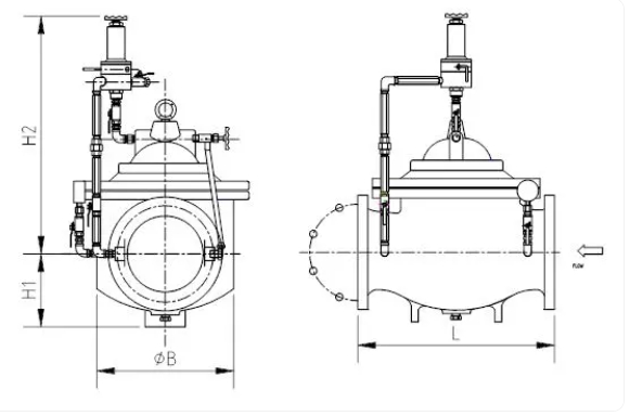
埃美柯泄壓/持壓閥9500X結構圖:

| 如果你對 埃美柯泄壓/持壓閥9500X感興趣,想了解更詳細的產品信息,填寫下表直接與廠家聯系: |